Střešní krytina
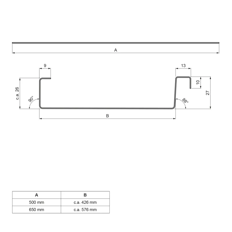
FALZ profil dvojitá stojatá drážka
| Materiál | Hliník lakovaný W.15 |
| Barva | Ocelově červená W.15 |
| RAL | 3009 |
Popis produktu
KJG FALZ profil KJG je moderní řešení střešní krytiny s elegantním vzhledem a dlouhou životností. Jedná se o hotový plechový pás se systémem dvojité stojaté drážky, který se dodává již vyprofilovaný přímo na stavbu, bez potřeby dalšího profilování. To znamená rychlejší montáž, přesné lícování a maximální úsporu času na místě realizace.
Díky preciznímu zpracování a kvalitě materiálů je KJG FALZ profil vhodný pro nové stavby i rekonstrukce střech, od tradičních až po moderní architektonické projekty. Je ideální pro nízké sklony od ± 3° střech a zvládne i náročné klimatické podmínky.
Výhody profilu KJG FALZ:
- Dodáván již vyprofilovaný, připravený k montáži.
- Těsný spoj bez viditelných šroubů.
- Odolnost vůči větru, dešti a sněhu.
- Elegantní a čistý vzhled střechy.
- Nízká hmotnost krytiny.
- Široká škála barevných provedení a povrchových úprav.
- Bez údržbová a dlouhověká krytina.
Zkratka barvy: OCM
Kód produktu: FALZ-DSD
Produktová tabulka
* výroba na objednávku
EN AW-3105 H44
W.15 25μ/PES25μ, Lesk 30% Polyester
Přepočteno kurzem: 1 € = 24,40 Kč
Doporučené spotřebitelské ceny
Další komponenty

Prodejní místa
V Evropě jsme doma. Máme zastoupení ve 14 zemích a stále rosteme. Kdekoli hledáte silného partnera pro Vaši střechu, obraťte se na nás.
Najděte prodejce
Chcete se zeptat na naše produkty nebo služby?
Newsletter
Přihlaste se k odběru newsletteru a dostávejte pravidelné užitečné informace o produktech KJG.















